公司新聞
水力除焦電氣控制系統的控制流程
[編輯:南方水泵][來源:m.cyboton.com] [時間:2015-09-30]
據東莞南方泵業了解,水力除焦電氣控制系統是以除焦控制閥為核心,綜合了氣動隔斷閥、高壓水泵、鉆機絞車以及供水、供油等系統協調動作,進行運行和聯絡的電控系統。通過采用可編程序控制器代替傳統的繼電器邏輯控制電路,提高了整個控制系統的可靠性,同時,又使整個系統具有了良好的可維護性。
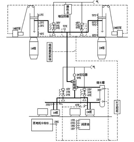
1.泵房控制柜
接通泵房電氣控制柜面板上的“控制電源”,控制電源接通,可編程控制器投入運行。啟動潤滑油泵、高位水罐供水泵,選擇控制柜面板上的準備啟動的高壓水泵號,并選擇準備除焦的焦塔號,確認無誤后,按下面板上的“選定”按鈕,再次確認除焦塔號。當油壓及儲水罐液位正常后,高壓水泵具備起動運轉條件,等待塔頂聯絡信號。收到塔頂要求啟動水泵的信號后,泵房操作人員在現場啟動高壓水泵。
2.塔頂正壓防爆操作盤
接通操作盤電源,在泵房控制柜上控制電源接通,完成選塔操作塔頂操作盤作鉆具升降操作。鉆具支點軸承的導軌上安裝有接近開關1PS~8PS,鉆具上升至上極限位置(1PS、5PS),鉆具絞車自動停止。鉆具下降到塔內接近開關(3PS、7PS)的安裝位置時,選定除焦塔的隔斷閥自動打開,聯合鉆孔切焦器進塔后,操作人員根據需要選擇除焦閥工作狀態。當狀態開關轉向予充位置時,除焦控制閥開啟以一定流量向上水管道充水,當塔頂管道內水壓達到予充值時,予充壓力開關接通,告示“予充完成”,此時操作人員可將狀態切換開關撥向“全開”位置,進入水力除焦工作狀態。聯合鉆孔切焦器到達塔底極限位置(4PS、8PS)時,鉆機絞車自動停止下降,聯合鉆孔切焦器在塔內時,除焦控制閥可任選工作狀態,切焦器自由升降。當聯合鉆孔切焦器上升到塔內上極限位置(2PS、6PS)時,若除焦控制閥處于“予充”或“全開”狀態,聯合鉆孔切焦器自動停止上升。還有,東莞南方水泵觀察到操作人員將除焦控制閥狀態開關撥向“回流”位置,聯合鉆孔切焦器方可繼續上升提出塔外,塔頂隔斷閥在聯合鉆孔切焦器提出塔外之前已自動關閉。
3.外接一次表分布示意圖

上一篇:定速泵對調速范圍的影響
下一篇:關于高溫高壓流程泵的壓力脈動






